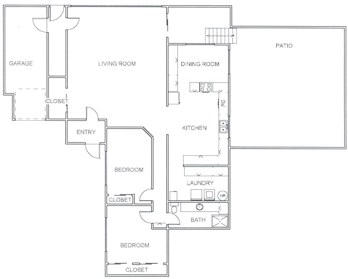
605 SE McKenzie #B