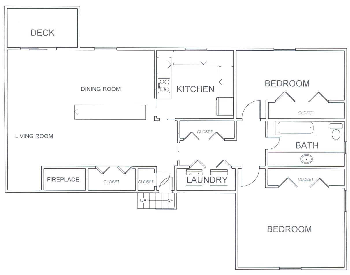
315 NW Larry St. #A